MNS 低压抽屉式开关柜
MNS低压抽屉式开关柜图片:

MNS低压抽屉式开关柜图片

MNS低压抽屉式开关柜图片

MNS低压抽屉式开关柜图片

概 述
我公司生产的MNS型低压抽出式开关柜,是引进和吸收国外先进技术,具有世界先进技术、具有世界先进水平的组合式低压开关柜,适用于电厂、石油化工、冶金、高层楼寓、电信、轻纺、商业中心、空港等需要可靠性的场合,作为发、供电系统中的配电、电动机集中控制、无功功率补偿的低压配电装置。
一般数据
★应用场合:配电、电动机控制
★执行标准:IEC60439、GB7251.1
★环境温度:-5℃—40℃
★环境相对湿度40℃时不超过50%,在较低温度时,允许有较高的相对湿度(如:20℃时为90%)
★安装地点:室内
★海拔高度:≤2000m
机械数据
★进出线形式:电缆/母线槽(桥)
★电缆进出:顶部/底部
★接线形式:柜前/柜后
★防护等级:IP30、IP40、IP54
★功能单元隔离形式:全隔离或部分隔离
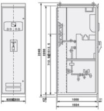
MNS低压抽屉式开关柜柜体尺寸图:
★高度:2200
★宽度:600、800、900、1000、1200
★深度:600、800、1000、1200
★表面处理:高压静电环氧粉末喷涂
★柜体颜色:根据用户要求

MNS低压抽屉式开关柜电气数据

性能特点
★结构紧凑,节省柜体体积,以较小的空间能容纳较多的功能单元。
★柜体能背靠背排列
★配电回路布置经济
★全部选用标准元件,方便工程设计人员设计,采用标准模块设计:分别可组成保护、操作、转换、控制、调节、测定、指示等标准单元,用户可根据需要任意选用组装。
★全系列标准化
★柜体可按工作和环境的不同要求设计出相应的防护等级
★在一个柜体中可自由组合成不同形式,如固定式和抽出式
★具备防电弧设计
★按要求柜体可满足抗地震、抗振荡和抗冲击的要求
★设备更新改进方便
★柜体最大程度地做到免维修
★设备运行连续性和可靠性高
★操作人员人身安全有保障
MNS低压抽屉式开关柜用途
MNS型低压抽出式成套开关设备(以下简称开关柜)为适应电力工业发展的需求,参考国外MNS系列低压开关柜设计并加以改进开发的高级型低压开关柜,该产品符合国家标准GB7251、VDE660和ZBK36001-89《低压抽出式成套开关设备》、国际标准IEC439规定MNS型低压开关柜适应各种供电、配电的需要,能广泛用于发电厂、变电站、工矿企业、大楼宾馆、市政建设等各种低压配电系统。
结构特点
1. MNS型低压开关柜框架为组合式结构,基本骨架由C型钢材组装而成。柜架的全部结构件经过镀锌处理,通过自攻锁紧螺钉或8.8级六角螺栓坚固连接成基本柜架,加上对应于方案变化的门、隔板、安装支架以及母线功能单元等部件组装成完整的开关柜。开关柜内部尺寸、零部件尺寸、隔室尺寸均按照模数化(E=25mm)变化。
2. MNS型组合式低压开关柜的每一个柜体分隔为三个室,即水平母线室(在柜后部),抽屉小室(在柜前部),电缆室(在柜下部或柜前右边)。室与室之间用钢板或高强度阻燃塑料功能板相互隔开,上下层抽屉之间有带通风孔的金属板隔离,以有效防止开关元件因故障引起的飞弧或母线与其它线路短路造成的事故。
3. MNS型低压开关柜的结构设计可满足各种进出线方案要求:上进上出、上进下出、下进上出、下进下出。
4. 设计紧凑:以较小的空间容纳较多的功能单元
5.. 结构件通用性强、组装灵活,以E=25mm为模数,结构及抽出式单元可以任意组合,以满足系统设计的需要
6. 母线用高强度阻燃型、高绝缘强度的塑料功能板保护,具有抗故障电弧性能,使运行维修安全可靠
7. 各种大小抽屉的机械联锁机构符合标准规定,有连接、试验、分离三个明显的位置,安全可靠。
8.采用标准模块设计:分别可组成保护、操作、转换、控制、调节、测定、指示等标准单元,可以根据要求任意组装。
9. 采用高强度阻燃型工程塑料,有效加强了防护安全性能。
10. 通用化、标准化程度高,装配方便。具有可靠的质量保证。
11. 柜体可按工作环境的不同要求选用相诮的防护等级。
12. 设备保护连续性和可靠性